

1.此裝置作用為在合模前先將頂針板完全復位,從而防止模具損壞;
2.此機構為內部安裝,占空間小;即使頂針的頂出行程較大,也可完全實現早回作用;
3.內部安裝,可避免與模具外部安裝零件及水路沖突。
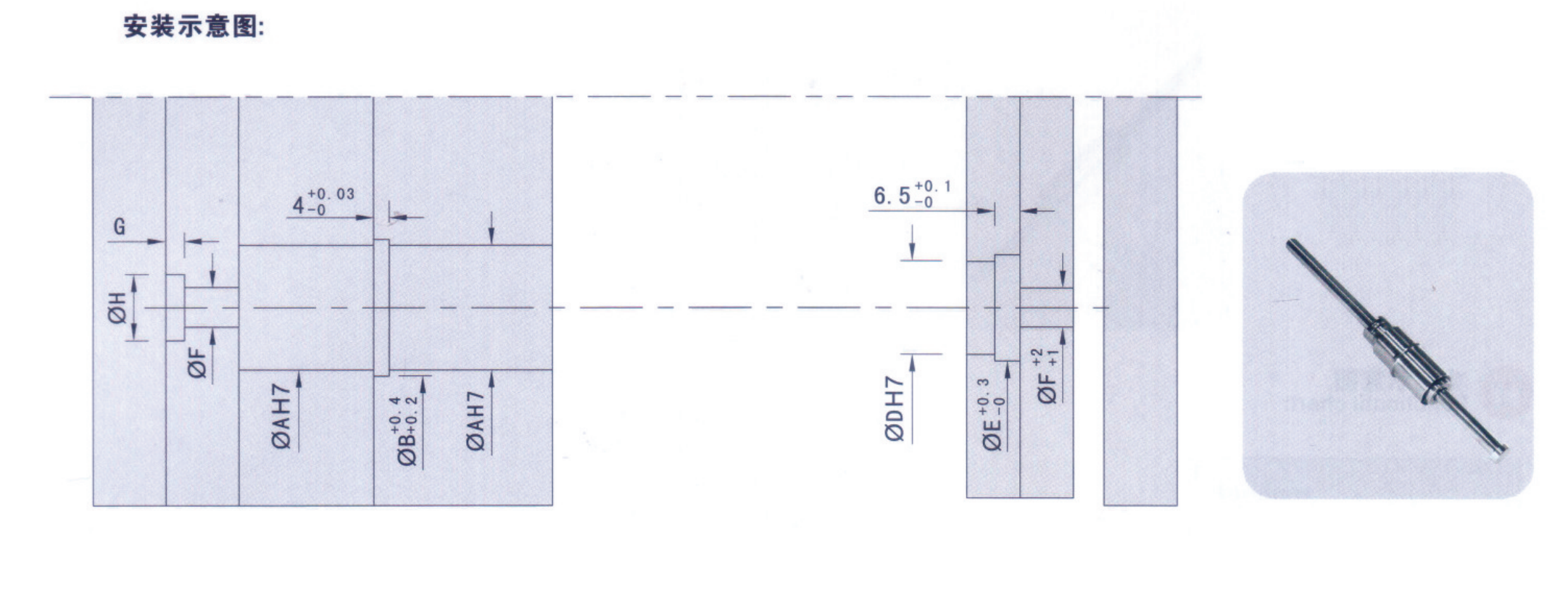
| Code | A | B | C | D | E | F | G | H |
| ER-100E | 32 | 35 | 24.2 | 24 | 27 | 10 | 5 | 17 |
| ER-101E | 42 | 46 | 32.2 | 32 | 36 | 16 | 7 | 24 |

精確計算行程,可通過截取直身司及復位桿長度來調整復位行程(如下圖所示);
參考開框尺寸圖加工安裝孔,注意所有安裝孔均同心并且垂直于分型畫;
每套模具要求至少使用2套或2套以上推板復位機構,并且對稱安裝;
如未對稱安裝,可能導致單套復位機構受力,因受力不平衡將導致組件斷裂;
定期對組件配合部位添加潤滑油;
確保復位推桿準確裝入直身司的前端部分,請注意如錯位將導致模具損壞;
進行配合功能測試,查看復位機構各部位是否順暢,行程是否吻合。



訂購:復位機構ER